GALLERY
PROPERTY DETAIL
Key Details
Sold Price $632,000
Property Type Single Family Home
Sub Type Single Family Residence
Listing Status Sold
Purchase Type For Sale
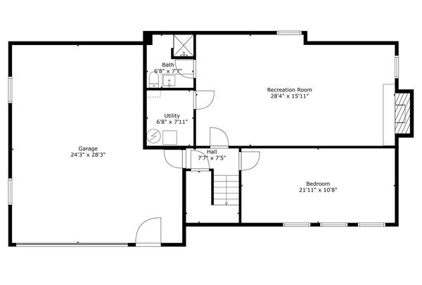
Square Footage 2, 806 sqft
Price per Sqft $225
Subdivision Hondo Add
MLS Listing ID 6700894
Bedrooms 4
Full Baths 1
Three Quarter Bath 2
Year Built 1965
Annual Tax Amount $7,844
Tax Year 2025
Lot Size 10,890 Sqft
Property Sub-Type Single Family Residence
Location
State MN
County Hennepin
Zoning Residential-Single Family
Rooms
Dining Room Informal Dining Room, Living/Dining Room
Building
Lot Description Public Transit (w/in 6 blks), Some Trees
Story Split Entry (Bi-Level)
Foundation 1770
Sewer City Sewer/Connected
Water City Water/Connected
Structure Type Brick/Stone,Fiber Cement
New Construction false
Interior
Heating Forced Air
Cooling Central Air
Fireplaces Number 2
Fireplaces Type Family Room, Gas, Living Room
Exterior
Parking Features Attached Garage, Concrete, Finished Garage, Garage Door Opener, Tuckunder Garage
Garage Spaces 2.0
Fence None
Pool None
Roof Type Age 8 Years or Less,Architectural Shingle,Asphalt,Pitched
Schools
School District Edina
SIMILAR HOMES FOR SALE
Check for similar Single Family Homes at price around $632,000 in Edina,MN

Active
$579,000
6308 Limerick LN, Edina, MN 55439
Listed by Edina Realty, Inc.5 Beds 4 Baths 2,606 SqFt
Active
$535,000
5224 W 70th ST, Edina, MN 55439
Listed by Chris Bremner of eXp Realty4 Beds 3 Baths 2,302 SqFt
Active
$499,900
6401 Tingdale AVE, Edina, MN 55439
Listed by Kris Kovalik of Pemberton RE4 Beds 3 Baths 2,322 SqFt
CONTACT









